E-Mail: [email protected]
Tel: 13567723322
Adapting to Complex Working Conditions, Offering Flexible and Diverse Products
Position: Index>Products>Knife Gate Valve Series>Electro-Hydraulic Knife Gate Valve > Manual hydraulic flange knife gate valve
This product controls the opening and closing of the valve through the reciprocating push position of the electro-hydraulic linkage. If equipped with sensors or digital display devices, it can carry out centralized or program control in long-distance, high-altitude dangerous areas, and is widely used in metallurgy, electricity, coal, mining, etc. , water conservancy and other industries, it is a new and updated alternative product with strong applicability.

product description
This product controls the opening and closing of the valve through the reciprocating push position of the electro-hydraulic linkage. If equipped with sensors or digital display devices, it can carry out centralized or program control in long-distance, high-altitude dangerous areas, and is widely used in metallurgy, electricity, coal, mining, etc. , water conservancy and other industries, it is a new and updated alternative product with strong applicability.
Features
◎Integration of machine, electricity, liquid and instrument to realize on-site control, centralized monitoring or automatic control.
◎Stepless force adjustment, stable operation, small impact force, suitable for high pressure occasions.
◎Energy saving, hydraulic transmission efficiency up to 80%
◎The overall structure of the valve is compact, the volume is small, and there is no need for a hydraulic pump station.
◎It can control any valve position and can be locked.
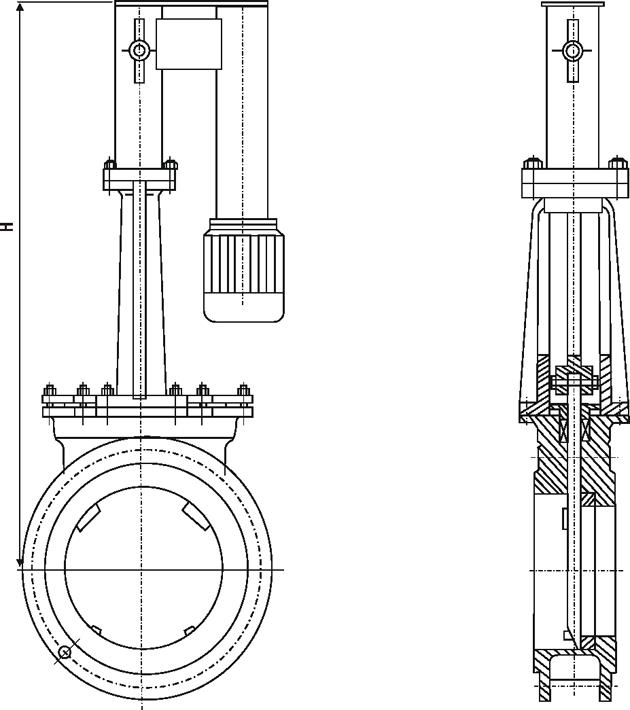
Nominal through diameter | 50 | 65 | 80 | 100 | 125 | 150 | 200 |
Height | 335 | 363 | 395 | 465 | 530 | 630 | 750 |
Nominal through diameter | 250 | 300 | 350 | 400 | 450 | 500 | 600 |
Height | 900 | 1125 | 1460 | 1450 | 1600 | 1900 | 2300 |
Contact Us
Tel: 0577-67962833
Sales: 0577-67371666
Address: Wuxing Industrial Zone, Oubei Town, Yongjia County, Wenzhou City, Zhejiang Province, China
E-mail: [email protected]